Rooftop addition proposed for historic building at Greenwich and N. Moore

The new owner of 385 Greenwich and 71 N. Moore — the two 19th Century buildings that have Yves and Smith & Mills on the ground floor — has a proposal for an extensive renovation and restoration as well as an addition to create a two-family house, which will come before the Landmarks Commission next month. The two buildings sold in August for $8.5 million.

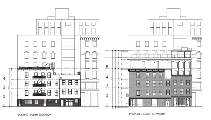
The photo above shows the mock-up for the addition on the roof.

The two buildings combined will result in two apartments as well as ground floor commercial spaces with entrances on the corner and on N. Moore. The residential entrance will be at 71 N. Moore and the architects — DXA Studio — are attempting to make the floors of the two buildings connect where they can.

If my back of the envelope math is right, the new five-story building will be about 8700 square feet including the commercial space. I think each floor is about 25 x 70.

The buildings — four stories on the corner, and three stories on N. Moore — are part of the Tribeca West Historic District. They were last purchased by the Gindi family, of Century 21, in 1997. (I believe the Gindis own much of the real estate under the restaurants operated by Matt Abramcyk’s Neighborhood Projects.)

The proposal shows four main areas of work:

  • removing the stucco and restoring a brick facade
  • redoing the base of the building with new storefront infill
  • constructing a rooftop addition that is distinctive from the historic part of the building
  • add an access pavilion on top of the penthouse addition for access to the roof deck.

The architects also propose creating a corner door (like Walker’s); one of the last bits of historic material — the cast iron column on the corner — will remain there. They are also proposing a corner sign that was present in the 1940 tax photos.

For what it’s worth, the community board did not like it at all and said as much in their letter to the Landmarks Commission: “The proposed modifications are inappropriate at every level –from the non-original canted corner at first floor, to the hard-edged projecting storefront windows, to the broken cornice treatment, and the proposed fifth-floor addition with roof bulkheads.”

The architects sited three neighborhood building with similar additions that were approved by Landmarks:

The Greenwich Street building was built in 1808 as a two-story warehouse; two more stories were added in the 1870s. The N. Moore building was completed in 1815. Both they think were coated in stucco around 1950. All that remains of the historic materials is one strip of cornice and the one cast iron column on the corner. All the other brick on Greenwich is new.

From the Landmarks Commission’s designation report for the Tribeca West Historic District:

The structure at 385 Greenwich was first built as a two-story house by Joshua Barker, a merchant and former alderman of the Sixth Ward, soon after he acquired the lot in 1805. Around 1815, Barker built a second dwelling on the lot, No. 71 North Moore Street. Just before his death, construction began on a third dwelling (no longer standing), No. 69 North Moore Street, which became the property of Barker’s widow in 1821.

The corner lot was later owned in the 1850s by Thomas Stillman, whose shoe business was located at 148 Greenwich Street, and in the 1860s by the Schabbehar family which was in the jewelry business.

In 1870 James P. Foster acquired the lot and in 1874 commissioned Peter L.P. Tostevin to alter and enlarge the corner structure from a two-and-a-half-story dwelling to a four-story tenement with a commercial base; the simple design was enhanced with a bracketed cornice.

In 1898 the storefronts were replaced, and projecting show windows and an angled corner entrance were installed. Since the 1920s the base of the building has housed restaurants. It is likely that the scored stucco facing was added around 1949 when the adjacent building, 71 North Moore Street, was faced with stucco.

 

9 Comments

  1. There are so many things wrong with what you wrote.

    First, there are 3 full floor lofts and the buildings are combined above the ground floor. The buildings have been inspected by the D.O.B., F.D.N.Y. and D.O.I.

    Secondly, the Certificate of Occupancy are not valid that were already used to overturned the previous sale. Since the buildings were illegally vacated over damage from adjacent property & illegal bar. Now on 39 permits & certificates.

    They are our 3 full floor lofts since 1982. Our neighbors on North Moore will tell you every word of the architect’s application was fraud.

    The Landmarks Preservation Commission will never approve this application. The matter is now under criminal investigation. #TruthMatters

  2. I love the new design. I’d give it a big thumbs up.

  3. Isn’t Landmarks supposed to be more of an “all or nothing’ thing, whether it’s the Tribeca West Historic District or somewhere else? Look around you. Look up. Down here it’s become a “this one is OK, but that very similar one is not.” We’ve seen Landmarks approve building renovations that fall far outside of what you’d expect Landmarks to uphold (reject) especially when it comes to rooftop additions. There is no consistency. One building could have their plan rejected because they proposed using an incorrect door hinge or hanging a sign at a slightly wrong angle, while others can get approval for massive penthouse and/or roof deck additions or floor-to-ceiling window installations. It’s a joke. And then the Community Board says they’re rejecting it based on specific Landmarks infractions, “from the non-original canted corner at first floor, to the hard-edged projecting storefront windows, to the broken cornice treatment, and the proposed fifth-floor addition with roof bulkheads.” Get over yourselves.

  4. 385 Greenwich was a hotel for sailors. 71 North Moore is one of the oldest remaining houses in Tribeca. The landmarks date back to 1805 and 1815. We restored to residential code with 8 years of full time workmen.

    They are our 3 full floor lofts since 1982 combined from above the ground floor that includes the attached single car garage. Smith & Mills occupies that was illegally subdivided from our lofts, never passed a full inspection, presented a know fire hazard, that was cooking in an a space that wasn’t vented, improperly installed a.c. equipment on a roof, illegally using the cellar as an accesory, illegally subdivided our electrical & started a fire. Six months after a city inspector issued an illegal & invalid CO. Smith & Mill also replaced our garage door without LPC’s approval. You can see in the photo. LPC falsely claimed did not exist.

    Now an architect falsely claims the buildings are not combined, the buildings are not landmarked, no work was done in 45 years & the buildings are in disrepair. Everyone can see there are 39 permits & certificates to repair damage Greenwich Hotel & illegal bar and the work that was previously approved. Is not what city’s records state inspectors found.

    This is Building Fraud where the evidence is what they did was so dangerous. Smith & Mills nearly killed us and took the surrounding buildings with us. Just like the gas explosion on the L.E.S. Con Ed filed the 101st complaint. They illegally subdivided our gas lines too.

    This is not he said she said. There are permits & certificates for each violation we claimed where they falsified permits to repair damage to our lofts from the Greenwich Hotel & illegal bar. In response to our formal complaints that caused its repair.

    This is fraud. Just like the Trump Fraud Trials. The buildings were illegally vacated. When 50 inspectors, city inspectors & property owners were arrested in Precinct 1. The buildings have been tied up on the courts for years. We won the lawsuit against us on the Supreme Court. The D.A. simply failed to restore us to possession.

  5. Is it me or do the people in this message board seem a tad close to the matter?

Comment: